Project

General

Profile

Actions

Cสำรวจโครงข่าย #16346

open

DD_เเจ้งเปิดเคสสำรวจประเมินราคา ระบบ Cable tv + IPTV + Lan to room โครงการ BANGKOK CITY RATCHADA

Added by ERP_Phaponson Siwsamdangdet 2 months ago.

Status:
New
Priority:
High
Assignee:
-
Start date:
10/26/2024
Due date:
% Done:

100%

Estimated time:

Description

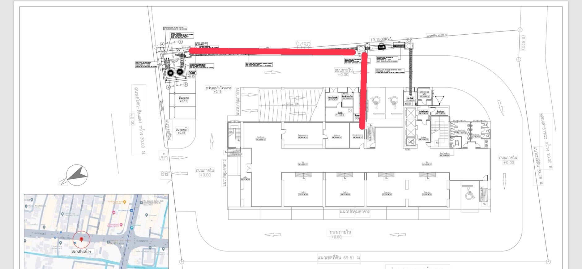
แจ้งเปิดเคสเข้าสำรวจให้บริการเคเบิลทีวี
มีจำนวน 228 ห้อง
ระบบภายในเป็น Lan to room และ RG
ลูกค้าอยากให้เข้าเสนอทั้ง 2 ระบบ คุยหน้างานกับคุณชัยรัตน์ ผู้มีอำนาจตัดสินใจ วันพฤหัสบดีที่ 31 ตุลาคม 2567 ช่วงเวลา 10 - 11 โมงค่ะ


Files

No data to display

Actions

Also available in: Atom PDF

Redmine Appliance - Powered by TurnKey Linux